電話:0577-66996885
傳真:0577-66995778
手機:13353386068
Q Q:2219968630
網址:www.cnjlzl.cn
地址:浙江省永嘉縣甌北鎮三橋工業區
【MP型塑料微型磁力驅動循環泵】產品簡介:
MP型磁力驅動循環泵運轉是在連軸上和葉輪上分別裝配有磁性材料而互相吸引偶合,無需配以傳統機械軸封,因而是完全密封的。電動機轉動扭力是通過主動磁及從動磁的引力帶動葉片工作運轉。現今慣用的磁力驅動泵極大的缺點是在缺液情況下嚴禁運轉否則整機將毀壞,給使用者增添不必要的麻煩和煩惱。" 海坦泵業"的磁力驅動泵則不必為此擔心。它采選了一種特別設計的特配方陶瓷作軸承,具有極強的耐磨性和抗腐蝕性,使其先進性能和質量安全得以的保證。磁力驅動循環泵概用無軸封設計,完全避免了傳統機械軸封泵存在的液體泄漏引起的腐蝕后污染的缺陷,是工業設備上*理想的液體輸送
【MP型塑料微型磁力驅動循環泵】型號意義:
【MP型塑料微型磁力驅動循環泵】產品用途:
化學工業:碳酸鈉化工業(鹽酸、次氯酸、二次化學品的生產);氟化物、化學肥料的生產;氣體吸收塔反應液體循環;油脂提煉(硫酸);廢酸類的回收及再生系統;化工廠和運輸車輛間的強酸類輸送
藥劑業:半導體用的發光化學物(EL)、農藥、醫藥、水處理化學劑的生產。
電鍍業:循環過濾各類電鍍液。
照片業:即現照相系統;X-光片、黑白、彩色、立體照片的沖曬。
電器用具業:電解質電容器的生產(鋁膜的浸蝕);干電池和蓄電池制造過程中輸送電解液;電路版的蝕刻;半導體生產過程中輸送高純度化學液。
金屬工業:氧化鋁膜處理設備;線材拉伸、鋼鐵軋制中除油及酸洗;車輛噴漆前除油及酸洗處理;氧化鈦、稀土元素的生產等。
礦業:金屬熔煉(輸送及循環電解液);廢業的洗滌處理。
食品工業:葡萄糖酸的生產(鹽酸);食油的提煉(硫酸);罐裝水果工業(鹽酸)。
醫療:人造腎臟,心肺,超聲波清洗機及各種醫療設備。
水處理:清洗離子交換樹脂;純水生產設備;海水淡化設備。
污染控制:添加污水處理化學藥劑到藥液缸;收集及輸送廢液;廢氣吸收設備(除臭裝置,排放廢氣前脫硫)
其它:應用在銀回收、晶片制作,實驗工廠年,制冰機,飲品機,生活鍋爐,熱交換器,太陽能系統,漂染,激光系統等領域或噴水池,魚塘,觀賞魚缸循環使用。
【MP型塑料微型磁力驅動循環泵】產品圖片:
【MP型塑料微型磁力驅動循環泵】性能曲線圖:
|
· MPH-400型—MPH-423 |
|
|
|
注:常溫清水條件下,*大流量時揚程為0; |
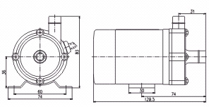
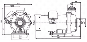
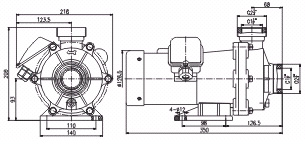
【MP型塑料微型磁力驅動循環泵】安裝尺寸圖:
|
型 號 |
a |
b |
c |
d |
e |
f |
G |
h |
H |
W |
L |
|
MP-15R |
49 |
63 |
68 |
6 |
38 |
23 |
121 |
45 |
100 |
82 |
196.5 |
|
MP-15RN |
49 |
63 |
68 |
6 |
39.5 |
24.5 |
117.5 |
46 |
100 |
82 |
180 |
|
MP-20R |
30 |
50 |
68 |
5.5 |
38.5 |
28.5 |
131.5 |
56 |
116 |
85 |
209 |
|
MP-20RZ |
30 |
50 |
68 |
5.5 |
40 |
40 |
134 |
56 |
126 |
85 |
212 |
|
MP-20RM |
30 |
50 |
68 |
5.5 |
34 |
28.5 |
127 |
56 |
117 |
85 |
204.5 |
|
MP-30R |
40 |
64 |
100 |
9 |
48 |
30 |
166.5 |
60 |
130 |
120 |
249.5 |
|
MP-30RZ |
40 |
64 |
100 |
9 |
40 |
40 |
151 |
60 |
130 |
120 |
234 |
|
MP-30RM |
40 |
64 |
100 |
9 |
48 |
30 |
166.5 |
60 |
130 |
120 |
249.5 |
|
|
型 號 |
a |
b |
c |
d |
e |
f |
G |
h |
H |
W |
L |
|
MP-20RX |
30 |
50 |
68 |
5.5 |
46.5 |
- |
143 |
56 |
130 |
85 |
220.5 |
|
|
MP-30RX |
40 |
64 |
100 |
9 |
48 |
- |
169.5 |
60 |
138 |
120 |
252.5 |
|
|
MP-40RX |
40 |
64 |
100 |
9 |
48 |
- |
170.5 |
60 |
138 |
120 |
277 |
|
型 號 |
a |
b |
c |
d |
e |
f |
G |
h |
H |
W |
L |
B |
J |
K |
|
MP-40R |
40 |
64 |
100 |
9 |
48 |
30 |
167.5 |
60 |
130 |
120 |
274 |
- |
118 |
60 |
|
MP-40RM |
40 |
64 |
100 |
9 |
48 |
30 |
167.5 |
60 |
130 |
120 |
274 |
- |
118 |
60 |
|
MP-55R |
40 |
64 |
100 |
9 |
56.5 |
43 |
198.5 |
65.5 |
161 |
120 |
275 |
- |
140 |
54 |
|
MP-55RZ |
40 |
64 |
100 |
9 |
56.5 |
43 |
198.5 |
65.5 |
161 |
120 |
275 |
- |
140 |
54 |
|
MP-70R |
70 |
96 |
108 |
9.5 |
55.75 |
44 |
177 |
66 |
161 |
142 |
267 |
202 |
142 |
118 |
|
MP-70RM |
70 |
96 |
108 |
9.5 |
52.75 |
44 |
174 |
66 |
156 |
142 |
264 |
202 |
142 |
118 |
|
MP-100R |
70 |
100 |
110 |
9 |
66 |
44 |
195.5 |
74 |
174 |
156 |
322 |
202 |
150 |
118 |
|
MP-100RM |
70 |
100 |
110 |
9 |
66 |
44 |
195.5 |
74 |
174 |
156 |
322 |
202 |
150 |
118 |
|
MP-100RX |
70 |
100 |
110 |
9 |
63 |
40 |
196.5 |
74 |
174 |
156 |
323 |
205 |
167 |
124 |
|
MP-120R |
98 |
130 |
110 |
12 |
80 |
51 |
184.5 |
93 |
208 |
140 |
359 |
216 |
187 |
123 |
|
型 號 |
a |
b |
c |
e |
f |
G |
h |
H |
W |
L |
J |
K |
|
MPH-400 |
98 |
130 |
110 |
80 |
51 |
188 |
94 |
209 |
140 |
384 |
183 |
128 |
|
MPH-401 |
130 |
175 |
130 |
98 |
57.5 |
244 |
114 |
247 |
160 |
475 |
208 |
137 |
【MP型塑料微型磁力驅動循環泵】結構圖:
|
部件 |
材料 |
|
|
|
1 |
固定螺絲及墊圈 |
不銹鋼 |
|
|
2 |
泵殼 |
增強聚丙烯 |
|
|
3 |
泵軸 |
氧化鋁陶瓷 |
|
|
4 |
葉輪 |
增強聚丙烯 |
|
|
5 |
被動磁鐵 |
鍶鐵氧體 |
|
|
6 |
密封圈 |
氟橡膠 |
|
|
7 |
隔離套 |
增強聚丙烯 |
|
|
8 |
主動磁鐵 |
鍶鐵氧體 |
|
|
9 |
電機 |
|
|
注:
1、螺紋接口式泵性能及安裝尺寸同軟管接口式泵;
2、MP-120RT磁力泵接口全新設計,裝拆方便快捷,適合于家庭觀賞魚或海洋養殖等行業;
3、MPH-400磁力泵裝配的電動機可選配IEC標準尺寸71的0.3KW法蘭接口的電動機。
4、MPH-401磁力泵裝配的電動機可選配IEC標準尺寸80的0.75KW法蘭接口的電動機。
5、G=英國直管螺紋規格;
6、規格和尺寸如有更改恕不另行通知
【MP型塑料微型磁力驅動循環泵】性能參數:
|
型號
|
軟管接口式 |
螺紋接口式 |
*大流量(L/min) |
*高揚程(m) |
標準輸出量 |
比重
|
馬達 |
||||
|
入口(mm) |
出口(mm) |
出入口(inch) |
活管(mm) |
50Hz/60Hz |
50Hz/60Hz |
流量(L/min)50Hz/60Hz |
揚程(m) |
輸出(w) |
相 |
||
|
MP-6R |
14 |
14 |
- |
- |
8/9 |
1/1.4 |
2.8/5 |
0.8 |
<1.2 |
3 |
1 |
|
MP-6RZ |
14 |
14 |
- |
- |
5.5/6 |
2.1/2.7 |
3.2/4.5 |
0.8 |
<1.1 |
3 |
1 |
|
MP-10R |
14 |
14 |
- |
- |
11/12 |
1.5/2.1 |
5/8 |
1 |
<1.1 |
6 |
1 |
|
MP-10RN |
14 |
14 |
- |
- |
11/12 |
1.5/2.1 |
5/8 |
1 |
<1.1 |
6 |
1 |
|
MP-15R |
16 |
16 |
- |
- |
16/19 |
2.7/3.4 |
8/12 |
1.5 |
<1.3 |
10 |
1 |
|
MP-15RN |
16 |
16 |
- |
- |
16/19 |
2.7/3.4 |
8/12 |
1.5 |
<1.3 |
10 |
1 |
|
MP-15RM |
- |
- |
3/4 |
13 |
16/19 |
2.4/3.4 |
8/12 |
1.5 |
<1.3 |
10 |
1 |
|
MP-20R |
18 |
18 |
- |
- |
27/32 |
3.1/4.3 |
17/22 |
2 |
<1.2 |
20 |
1 |
|
MP-20RM |
- |
- |
3/4 |
16 |
27/32 |
3.1/4.3 |
17/22 |
2 |
<1.2 |
20 |
1 |
|
MP-20RX |
26 |
26 |
- |
- |
46/52 |
1.8/2.5 |
30/40 |
1 |
<1.3 |
20 |
1 |
|
MP-20RXM |
- |
- |
1 |
20 |
46/52 |
1.8/2.5 |
30/40 |
1 |
<1.3 |
20 |
1 |
|
MP-2RZ |
18 |
18 |
- |
- |
10/11 |
4.6/6.9 |
7/10 |
4 |
<1.1 |
20 |
1 |
|
MP-20RZM |
- |
- |
3/4 |
13 |
10/11 |
4.6/6.9 |
7/10 |
4 |
<1.1 |
20 |
1 |
|
MP-30R |
20 |
20 |
- |
- |
33/38 |
3.8/5.4 |
16/25 |
2.5 |
<1.3 |
45 |
1 |
|
MP-30RM |
- |
- |
3/4 |
16 |
33/38 |
3.8/5.4 |
16/25 |
2.5 |
<1.3 |
45 |
1 |
|
MP-30RX |
26 |
26 |
- |
- |
62/72 |
2.9/4.1 |
32/46 |
2 |
<1.1 |
45 |
1 |
|
MP-30RXM |
- |
- |
1 |
20 |
62/72 |
2.9/4.1 |
32/46 |
2 |
<1.1 |
45 |
1 |
|
MP-30RZ |
18 |
18 |
- |
- |
15/17 |
8/11 |
10/14 |
6 |
<1.1 |
45 |
1 |
|
MP-30RZM |
- |
- |
3/4 |
13 |
15/17 |
8/11 |
10/14 |
6 |
<1.1 |
45 |
1 |
|
MP-40R |
20 |
20 |
- |
- |
45/52 |
4.6/6.5 |
22/34 |
4 |
<1.1 |
65 |
1 |
|
MP-40RM |
- |
- |
3/4 |
16 |
45/52 |
4.6/6.5 |
22/34 |
4 |
<1.1 |
65 |
1 |
|
MP-40RX |
26 |
26 |
- |
- |
75/85 |
3.3/4.7 |
47/65 |
2 |
<1.1 |
65 |
1 |
|
MP-40RXM |
- |
- |
1 |
20 |
75/85 |
3.3/4.7 |
47/65 |
2 |
<1.1 |
65 |
1 |
|
MP-55R |
26 |
26 |
- |
- |
60/70 |
5.6/8.2 |
30/45 |
4 |
<1.2 |
90 |
1or3 |
|
MP-55RM |
- |
- |
1 |
20 |
60/70 |
5.6/8.2 |
30/45 |
4 |
<1.2 |
90 |
1or3 |
|
MP-55RZ |
26 |
26 |
- |
- |
25/28 |
10/14 |
15/22 |
8 |
<1.1 |
90 |
1or3 |
|
MP-55RZM |
- |
- |
1 |
20 |
25/28 |
10/14 |
15/22 |
8 |
<1.1 |
90 |
1or3 |
|
MP-70R |
26 |
26 |
- |
- |
86/97 |
6.7/9.7 |
50/72 |
4 |
<1.1 |
150/180 |
1or3 |
|
MP-70RM |
- |
- |
1 |
20 |
86/97 |
6.7/9.7 |
50/72 |
4 |
<1.1 |
150/180 |
1or3 |
|
MP-100R |
26 |
26 |
- |
- |
120/130 |
8.6/11.6 |
60/70 |
7/9 |
<1.3 |
250/265 |
1or3 |
|
MP-100RM |
- |
- |
1 |
20 |
120/130 |
8.6/11.6 |
60/70 |
7/9 |
<1.3 |
250/265 |
1or3 |
|
MP-100RX |
- |
- |
11/4 |
32 |
170 |
9.0 |
100 |
5.0 |
<1.3 |
250 |
1or3 |
|
MP-120R |
- |
- |
11/2 |
36 |
220 |
10.5 |
140 |
6.0 |
<1.3 |
370 |
1or3 |
|
MP-120RT |
- |
- |
21/4 |
48 |
220 |
10.5 |
140 |
6.0 |
<1.3 |
370 |
1or3 |
|
MPH-400CV5-D |
- |
- |
11/2 |
36 |
260 |
12.5 |
150 |
8.5 |
<1.3 |
370 |
3 |
|
MPH-401CV5-D |
- |
- |
11/2 |
36 |
330 |
18 |
200 |
12 |
<1.3 |
750 |
3 |
|
MPH-422CV5-D |
- |
- |
2 |
11/2 |
300 |
21 |
200 |
18.5 |
<1.3 |
1500 |
1or3 |
|
MPH-423CV5-D |
- |
- |
2 |
11/2 |
360 |
22 |
300 |
20.5 |
<1.3 |
2200 |
1or3 |


.jpg)