電話:0577-66996885
傳真:0577-66995778
手機:13353386068
Q Q:2219968630
網址:www.cnjlzl.cn
地址:浙江省永嘉縣甌北鎮三橋工業區
產品簡介:
YG型立式管道油泵系ISG型系列單級單吸管道離心泵擴展,是本單位科技人員聯合國內水泵專家選用國內優秀水力模型,采用IS型離心泵之性能參數,在一般立式泵的基礎上進行巧妙組合設計而成,同時根據使用溫度、介質等不同在ISG型離心泵基礎上派生出適用輸送油性介質的產品。該系列產品具有高效節能、噪音低、性能可靠等優點。符合機械部JB/T5305 8-93的標準要求。產品按國際IS02858標準設計制造.該系列產品全部采用標準防爆電機,其防爆等級為DIIBT4、防護等級IP54,葉輪采用優質黃銅鑄而成,9 3年通過機械工業部管道泵產品統檢合格。
工作條件:
1.吸入壓力<1.0 M P a,或泵系統工作壓力<1.6 MP a,即泵吸入口壓力+泵揚程<1.6 MP a、泵靜壓試驗壓力為2.5 M P a,訂貨時請注明系統工作壓力。泵系統工作壓力大于1.6 MPa BU應在訂貨時另行提出。以便在制造時泵的過流部分和聯接部分采用鑄鋼材料。
2.環境溫度<40 ℃,相對濕度<9 5%。
3.所輸送介質中固體顆粒體積含量不超過單位體積的0.1%,粒度>0.2 mm 。
注:如使用介質為帶有細小顆粒,請在訂貨日寸說明,以便廠家采用耐磨式機械密封。
型譜圖:
結構圖:
|
|
1 |
取壓塞 |
YG型結構說明: 1.本結構適用于輸送不含固體顆粒的介質,溫度為-20℃-+120℃的油類 2.所輸送油類介質溫度T>120℃或含有微量顆粒時,可選 擇高溫結構或化工泵結構。 |
|
2 |
排氣閥 |
||
|
3 |
葉輪 |
||
|
4 |
機械密封 |
||
|
5 |
軸承 |
||
|
6 |
電機 |
||
|
7 |
聯體窿 |
||
|
8 |
擋水圈 |
||
|
9 |
葉輪螺母 |
||
|
10 |
泵體 |
||
|
11 |
放水閥 |
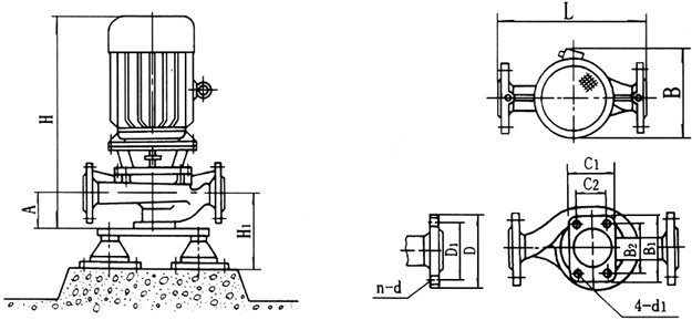
安裝尺寸圖:
|
型號 |
外形尺寸 |
安裝尺寸 |
進口法蘭尺寸 |
隔振器(墊) |
||||||||
|
L |
B |
H |
C1×B1 |
A |
C2×B2 |
4-d1 |
D |
D1 |
n-d |
規格 |
H1 |
|
|
YG20-110 |
260 |
230 |
405 |
80×110 |
55 |
50×80 |
4-12 |
G3/4 |
/ |
/ |
SD41-0.5 |
75 |
|
YG20-160 |
300 |
230 |
420 |
90×130 |
65 |
60×100 |
4-14 |
G3/4 |
/ |
/ |
SD41×0.5 |
85 |
|
YG25-110 |
260 |
230 |
415 |
80×110 |
60 |
50×80 |
4-14 |
115 |
85 |
4-Φ14 |
SD41×0.5 |
80 |
|
YG25-125 |
260 |
230 |
435 |
80×110 |
75 |
50×80 |
4-14 |
115 |
85 |
4-Φ14 |
SD41×0.5 |
95 |
|
YG25-125A |
260 |
230 |
435 |
80×110 |
75 |
50×80 |
4-14 |
115 |
85 |
4-Φ14 |
SD41×0.5 |
95 |
|
YG25-160 |
300 |
270 |
430 |
90×130 |
65 |
60×100 |
4-14 |
115 |
85 |
4-Φ14 |
SD41-0.5 |
85 |
|
YG25-160A |
300 |
270 |
430 |
90×130 |
65 |
60×100 |
4-14 |
115 |
85 |
4-Φ14 |
SD41-0.5 |
85 |
|
YG32-100 |
260 |
230 |
445 |
100×150 |
72 |
70×120 |
4-14 |
140 |
100 |
4-Φ18 |
SD41-0.5 |
92 |
|
YG32-125 |
260 |
230 |
445 |
100×150 |
72 |
70×120 |
4-14 |
140 |
100 |
4-Φ18 |
SD41-0.5 |
92 |
|
YG32-125A |
260 |
230 |
445 |
100×150 |
72 |
70×120 |
4-14 |
140 |
100 |
4-Φ18 |
SD41-0.5 |
92 |
|
YG32-160 |
320 |
270 |
505 |
100×150 |
85 |
70×120 |
4-14 |
140 |
100 |
4-Φ18 |
SD61-0.5 |
105 |
|
YG32-160A |
320 |
270 |
415 |
90×130 |
90 |
70×120 |
4-14 |
140 |
100 |
4-Φ18 |
SD61-0.5 |
110 |
|
YG32-160(I) |
320 |
270 |
505 |
100×150 |
90 |
70×120 |
4-14 |
140 |
100 |
4-Φ18 |
SD61-0.5 |
110 |
|
YG32-200 |
340 |
330 |
540 |
120×170 |
95 |
80×130 |
4-14 |
140 |
100 |
4-Φ18 |
SD61-0.5 |
115 |
|
YG32-200A |
340 |
330 |
540 |
120×170 |
95 |
80×130 |
4-14 |
140 |
100 |
4-Φ18 |
SD61-0.5 |
115 |
|
型號 |
外形尺寸 |
安裝尺寸 |
進口法蘭尺寸 |
隔振器(墊) |
||||||||
|
L |
B |
H |
C1×B1 |
A |
C2×B2 |
4-d1 |
D |
D1 |
n-d |
規格 |
H1 |
|
|
YG32-200(I) |
340 |
330 |
560 |
120×170 |
95 |
80×130 |
4-14 |
140 |
100 |
4-Φ18 |
SD61-0.5 |
115 |
|
YG40-100 |
260 |
230 |
445 |
120×170 |
85 |
70×120 |
4-14 |
150 |
110 |
4-Φ18 |
SD41-0.5 |
105 |
|
YG40-100A |
260 |
230 |
445 |
100×150 |
85 |
70×120 |
4-14 |
150 |
110 |
4-Φ18 |
SD41-0.5 |
105 |
|
YG40-125 |
280 |
230 |
445 |
100×150 |
85 |
70×120 |
4-14 |
150 |
110 |
4-Φ18 |
SD41-0.5 |
105 |
|
YG40-125A |
280 |
230 |
445 |
100×150 |
85 |
70×120 |
4-14 |
150 |
110 |
4-Φ18 |
SD41-0.5 |
105 |
|
YG40-160 |
320 |
270 |
505 |
100×150 |
90 |
70×120 |
4-14 |
150 |
110 |
4-Φ18 |
SD61-0.5 |
110 |
|
YG40-160A |
320 |
270 |
505 |
100×150 |
90 |
70×120 |
4-14 |
150 |
110 |
4-Φ18 |
SD61-0.5 |
110 |
|
YG40-160B |
320 |
270 |
505 |
100×150 |
90 |
70×120 |
4-14 |
150 |
110 |
4-Φ18 |
SD61-0.5 |
110 |
|
YG40-200 |
340 |
330 |
560 |
120×170 |
95 |
80×130 |
4-14 |
150 |
110 |
4-Φ18 |
SD61-0.5 |
115 |
|
YG40-200A |
340 |
330 |
560 |
120×170 |
95 |
80×130 |
4-14 |
150 |
110 |
4-Φ18 |
SD61-0.5 |
115 |
|
YG40-200B |
340 |
330 |
560 |
120×170 |
95 |
80×130 |
4-14 |
150 |
110 |
4-Φ18 |
SD61-0.5 |
115 |
|
YG40-250 |
400 |
405 |
630 |
120×170 |
95 |
80×130 |
4-14 |
150 |
110 |
4-Φ18 |
SD61-0.5 |
115 |
|
YG40-250A |
400 |
405 |
630 |
120×170 |
95 |
80×130 |
4-14 |
150 |
110 |
4-Φ18 |
SD61-0.5 |
115 |
|
YG40-250B |
400 |
405 |
565 |
120×170 |
95 |
80×130 |
4-14 |
150 |
110 |
4-Φ18 |
SD61-0.5 |
115 |
|
YG40-100(I) |
300 |
230 |
455 |
120×170 |
90 |
80×130 |
4-14 |
150 |
110 |
4-Φ18 |
SD41-0.5 |
110 |
|
型號 |
外形尺寸 |
安裝尺寸 |
進口法蘭尺寸 |
隔振器(墊) |
||||||||
|
L |
B |
H |
C1×B1 |
A |
C2×B2 |
4-d1 |
D |
D1 |
n-d |
規格 |
H1 |
|
|
YG40-100(I)A |
300 |
230 |
455 |
120×170 |
90 |
80×130 |
4-14 |
150 |
110 |
4-Φ18 |
SD41-0.5 |
110 |
|
YG40-125(I) |
300 |
240 |
465 |
120×170 |
90 |
80×130 |
4-14 |
150 |
110 |
4-Φ18 |
SD41-0.5 |
110 |
|
YG40-125(I)A |
300 |
240 |
450 |
120×170 |
90 |
80×130 |
4-14 |
150 |
110 |
4-Φ18 |
SD41-0.5 |
110 |
|
YG40-160(I) |
340 |
300 |
550 |
120×170 |
95 |
80×130 |
4-14 |
150 |
110 |
4-Φ18 |
SD61-0.5 |
115 |
|
YG40-160(I)A |
340 |
300 |
515 |
120×170 |
95 |
80×130 |
4-14 |
150 |
110 |
4-Φ18 |
SD61-0.5 |
115 |
|
YG40-160(I)B |
340 |
300 |
490 |
120×170 |
95 |
80×130 |
4-14 |
150 |
110 |
4-Φ18 |
SD61-0.5 |
115 |
|
YG40-200(I) |
360 |
350 |
635 |
120×170 |
95 |
80×130 |
4-14 |
150 |
110 |
4-Φ18 |
SD61-0.5 |
115 |
|
YG40-200(I)A |
360 |
350 |
570 |
120×170 |
95 |
80×130 |
4-14 |
150 |
110 |
4-Φ18 |
SD61-0.5 |
115 |
|
YG40-200(I)B |
360 |
350 |
550 |
120×170 |
95 |
80×130 |
4-14 |
150 |
110 |
4-Φ18 |
SD61-0.5 |
115 |
|
YG40-250(I) |
450 |
430 |
780 |
140×200 |
105 |
100×160 |
4-18 |
150 |
110 |
4-Φ18 |
JSD2-3 |
205 |
|
YG40-250(I)A |
450 |
360 |
650 |
140×200 |
105 |
100×160 |
4-18 |
150 |
110 |
4-Φ18 |
JSD2-3 |
205 |
|
YG40-250(I)B |
450 |
360 |
650 |
140×200 |
105 |
100×160 |
4-18 |
150 |
110 |
4-Φ18 |
JSD2-3 |
205 |
|
YG40-250(I)C |
450 |
360 |
650 |
140×200 |
105 |
100×160 |
4-18 |
150 |
110 |
4-Φ18 |
JSD2-3 |
205 |
|
YG50-100 |
290 |
230 |
455 |
100×150 |
95 |
70×120 |
4-14 |
165 |
125 |
4-Φ18 |
SD41-0.5 |
115 |
|
YG50-100A |
290 |
230 |
455 |
100×150 |
95 |
70×120 |
4-14 |
165 |
125 |
4-Φ18 |
SD41-0.5 |
115 |
|
型號 |
外形尺寸 |
安裝尺寸 |
進口法蘭尺寸 |
隔振器(墊) |
||||||||
|
L |
B |
H |
C1×B1 |
A |
C2×B2 |
4-d1 |
D |
D1 |
n-d |
規格 |
H1 |
|
|
YG50-125 |
300 |
240 |
465 |
100×150 |
95 |
70×120 |
4-14 |
165 |
125 |
4-Φ18 |
SD41-0.5 |
115 |
|
YG50-125A |
300 |
240 |
450 |
100×150 |
95 |
70×120 |
4-14 |
165 |
125 |
4-Φ18 |
SD41-0.5 |
115 |
|
YG50-160 |
320 |
300 |
550 |
120×170 |
100 |
80×130 |
4-14 |
165 |
125 |
4-Φ18 |
SD61-0.5 |
120 |
|
YG50-160A |
320 |
300 |
515 |
120×170 |
100 |
80×130 |
4-14 |
165 |
125 |
4-Φ18 |
SD61-0.5 |
120 |
|
YG50-160B |
320 |
300 |
490 |
120×170 |
100 |
80×130 |
4-14 |
165 |
125 |
4-Φ18 |
SD61-0.5 |
120 |
|
YG50-200 |
360 |
350 |
635 |
120×170 |
100 |
80×130 |
4-14 |
165 |
125 |
4-Φ18 |
SD61-0.5 |
120 |
|
YG50-200A |
360 |
350 |
570 |
120×170 |
100 |
80×130 |
4-14 |
165 |
125 |
4-Φ18 |
SD61-0.5 |
120 |
|
YG50-200B |
360 |
350 |
550 |
120×170 |
100 |
80×130 |
4-14 |
165 |
125 |
4-Φ18 |
SD61-0.5 |
120 |
|
YG50-250 |
440 |
430 |
780 |
140×270 |
105 |
100×160 |
4-18 |
165 |
125 |
4-Φ18 |
JGD2-3 |
205 |
|
YG50-250A |
440 |
430 |
650 |
140×270 |
105 |
100×160 |
4-18 |
165 |
125 |
4-Φ18 |
JGD2-3 |
205 |
|
YG50-250B |
440 |
360 |
650 |
140×270 |
105 |
100×160 |
4-18 |
165 |
125 |
4-Φ18 |
JGD2-3 |
205 |
|
YG50-250C |
440 |
360 |
650 |
140×270 |
105 |
100×160 |
4-18 |
165 |
125 |
4-Φ18 |
JGD2-3 |
205 |
|
YG50-100(I) |
320 |
235 |
475 |
140×270 |
105 |
100×160 |
4-18 |
165 |
125 |
4-Φ18 |
SD41-0.5 |
125 |
|
YG50-100(I)A |
320 |
235 |
460 |
140×270 |
105 |
100×160 |
4-18 |
165 |
125 |
4-Φ18 |
SD41-0.5 |
125 |
|
YG50-125(I) |
340 |
280 |
550 |
140×270 |
95 |
100×160 |
4-18 |
165 |
125 |
4-Φ18 |
SD61-0.5 |
110 |
|
型號 |
外形尺寸 |
安裝尺寸 |
進口法蘭尺寸 |
隔振器(墊) |
||||||||
|
L |
B |
H |
C1×B1 |
A |
C2×B2 |
4-d1 |
D |
D1 |
n-d |
規格 |
H1 |
|
|
YG50-125(I)A |
340 |
280 |
515 |
140×270 |
95 |
100×160 |
4-18 |
165 |
125 |
4-Φ18 |
SD61-0.5 |
110 |
|
YG50-160(I) |
360 |
305 |
570 |
140×270 |
100 |
100×160 |
4-18 |
165 |
125 |
4-Φ18 |
SD61-0.5 |
120 |
|
YG50-160(I)A |
360 |
305 |
570 |
140×270 |
100 |
100×160 |
4-18 |
165 |
125 |
4-Φ18 |
SD61-0.5 |
120 |
|
YG50-160(I)B |
360 |
305 |
550 |
140×270 |
100 |
100×160 |
4-18 |
165 |
125 |
4-Φ18 |
SD61-0.5 |
120 |
|
YG50-200(I) |
380 |
350 |
635 |
140×270 |
105 |
100×160 |
4-18 |
165 |
125 |
4-Φ18 |
SD61-0.5 |
125 |
|
YG50-200(I)A |
380 |
350 |
635 |
140×270 |
105 |
100×160 |
4-18 |
165 |
125 |
4-Φ18 |
SD61-0.5 |
125 |
|
YG50-200(I)B |
380 |
350 |
635 |
140×270 |
105 |
100×160 |
4-18 |
165 |
125 |
4-Φ18 |
SD61-0.5 |
125 |
|
YG50-250(I) |
460 |
435 |
785 |
160×220 |
110 |
120×180 |
4-18 |
165 |
125 |
4-Φ18 |
JGD2-3 |
210 |
|
YG50-250(I)A |
460 |
435 |
785 |
160×220 |
110 |
120×180 |
4-18 |
165 |
125 |
4-Φ18 |
JGD2-3 |
210 |
|
YG50-250(I)B |
460 |
435 |
785 |
160×220 |
110 |
120×180 |
4-18 |
165 |
125 |
4-Φ18 |
JGD2-3 |
210 |
|
YG50-315(I) |
550 |
510 |
920 |
190×280 |
110 |
150×240 |
4-18 |
165 |
125 |
4-Φ18 |
JGD2-3 |
210 |
|
YG50-315(I)A |
550 |
470 |
855 |
190×280 |
110 |
150×240 |
4-18 |
165 |
125 |
4-Φ18 |
JGD2-3 |
210 |
|
YG50-315(I)B |
550 |
435 |
830 |
190×280 |
110 |
150×240 |
4-18 |
165 |
125 |
4-Φ18 |
JGD2-3 |
210 |
|
YG50-315(I)C |
550 |
435 |
785 |
190×280 |
110 |
150×240 |
4-18 |
165 |
125 |
4-Φ18 |
JGD2-3 |
210 |
|
YG65-100 |
320 |
235 |
475 |
140×200 |
105 |
100×160 |
4-18 |
185 |
145 |
4-Φ18 |
SD41-0.5 |
125 |
|
型號 |
外形尺寸 |
安裝尺寸 |
進口法蘭尺寸 |
隔振器(墊) |
||||||||
|
L |
B |
H |
C1×B1 |
A |
C2×B2 |
4-d1 |
D |
D1 |
n-d |
規格 |
H1 |
|
|
YG65-100A |
320 |
235 |
460 |
140×200 |
105 |
100×160 |
4-18 |
185 |
145 |
4-Φ18 |
SD41-0.5 |
125 |
|
YG65-125 |
340 |
280 |
550 |
140×200 |
100 |
100×160 |
4-18 |
185 |
145 |
4-Φ18 |
SD41-0.5 |
120 |
|
YG65-125A |
340 |
280 |
515 |
140×200 |
100 |
100×160 |
4-18 |
185 |
145 |
4-Φ18 |
SD41-0.5 |
120 |
|
YG65-160 |
360 |
305 |
570 |
140×200 |
100 |
100×160 |
4-18 |
185 |
145 |
4-Φ18 |
SD41-0.5 |
120 |
|
YG65-160A |
360 |
305 |
570 |
140×200 |
100 |
100×160 |
4-18 |
185 |
145 |
4-Φ18 |
SD41-0.5 |
120 |
|
YG65-160B |
360 |
305 |
550 |
140×200 |
100 |
100×160 |
4-18 |
185 |
145 |
4-Φ18 |
SD41-0.5 |
120 |
|
YG65-200 |
380 |
350 |
635 |
140×200 |
105 |
100×160 |
4-18 |
185 |
145 |
4-Φ18 |
SD41-0.5 |
125 |
|
YG65-200A |
380 |
350 |
635 |
140×200 |
105 |
100×160 |
4-18 |
185 |
145 |
4-Φ18 |
SD41-0.5 |
125 |
|
YG65-200B |
380 |
350 |
635 |
140×200 |
105 |
100×160 |
4-18 |
185 |
145 |
4-Φ18 |
SD41-0.5 |
125 |
|
YG65-250 |
480 |
435 |
785 |
160×220 |
110 |
120×180 |
4-18 |
185 |
145 |
4-Φ18 |
JGD2-3 |
210 |
|
YG65-250A |
480 |
435 |
785 |
160×220 |
110 |
120×180 |
4-18 |
185 |
145 |
4-Φ18 |
JGD2-3 |
210 |
|
YG65-250B |
480 |
435 |
785 |
160×220 |
110 |
120×180 |
4-18 |
185 |
145 |
4-Φ18 |
JGD2-3 |
210 |
|
YG65-315 |
550 |
510 |
920 |
190×280 |
110 |
120×180 |
4-18 |
185 |
145 |
4-Φ18 |
JGD2-3 |
210 |
|
YG65-315A |
550 |
470 |
855 |
190×280 |
110 |
150×240 |
4-18 |
185 |
145 |
4-Φ18 |
JGD2-3 |
210 |
|
YG65-315B |
550 |
435 |
830 |
190×280 |
110 |
150×240 |
4-18 |
185 |
145 |
4-Φ18 |
JGD2-3 |
210 |
|
型號 |
外形尺寸 |
安裝尺寸 |
進口法蘭尺寸 |
隔振器(墊) |
||||||||
|
L |
B |
H |
C1×B1 |
A |
C2×B2 |
4-d1 |
D |
D1 |
n-d |
規格 |
H1 |
|
|
YG65-315C |
550 |
435 |
785 |
190×280 |
110 |
150×240 |
4-18 |
185 |
145 |
4-Φ18 |
JGD2-3 |
210 |
|
YG65-100(I) |
400 |
285 |
570 |
140×200 |
120 |
100×160 |
4-18 |
185 |
145 |
4-Φ18 |
SD61-0.5 |
140 |
|
YG65-100(I)A |
400 |
245 |
530 |
140×200 |
120 |
100×160 |
4-18 |
185 |
145 |
4-Φ18 |
SD61-0.5 |
140 |
|
YG65-125(I) |
400 |
360 |
660 |
140×200 |
100 |
100×160 |
4-18 |
185 |
145 |
4-Φ18 |
SD61-0.5 |
140 |
|
YG65-125(I)A |
400 |
315 |
595 |
140×200 |
120 |
100×160 |
4-18 |
185 |
145 |
4-Φ18 |
SD61-0.5 |
140 |
|
YG65-160(I) |
400 |
360 |
660 |
140×200 |
125 |
100×160 |
4-18 |
185 |
145 |
4-Φ18 |
SD61-0.5 |
145 |
|
YG65-160(I)A |
400 |
360 |
660 |
140×200 |
125 |
100×160 |
4-18 |
185 |
145 |
4-Φ18 |
SD61-0.5 |
145 |
|
YG65-160(I)B |
400 |
315 |
660 |
140×200 |
125 |
100×160 |
4-18 |
185 |
145 |
4-Φ18 |
SD61-0.5 |
145 |
|
YG65-200(I) |
450 |
430 |
795 |
140×200 |
125 |
100×160 |
4-18 |
185 |
145 |
4-Φ18 |
JGD2-3 |
225 |
|
YG65-200(I)A |
450 |
430 |
795 |
140×200 |
125 |
100×160 |
4-18 |
185 |
145 |
4-Φ18 |
JGD2-3 |
225 |
|
YG65-200(I)B |
450 |
430 |
665 |
140×200 |
125 |
100×160 |
4-18 |
185 |
145 |
4-Φ18 |
JGD2-3 |
225 |
|
YG65-250(I) |
480 |
465 |
870 |
160×220 |
130 |
120×180 |
4-18 |
185 |
145 |
4-Φ18 |
JGD2-3 |
280 |
|
YG65-250(I)A |
480 |
430 |
850 |
160×220 |
130 |
120×180 |
4-18 |
185 |
145 |
4-Φ18 |
JGD2-3 |
280 |
|
YG65-250(I)B |
480 |
430 |
805 |
160×220 |
120 |
120×180 |
4-18 |
185 |
145 |
4-Φ18 |
JGD2-3 |
230 |
|
YG65-315(I) |
580 |
530 |
1000 |
190×280 |
130 |
150×240 |
4-18 |
185 |
145 |
4-Φ18 |
JGD2-3 |
230 |
|
型號 |
外形尺寸 |
安裝尺寸 |
進口法蘭尺寸 |
隔振器(墊) |
||||||||
|
L |
B |
H |
C1×B1 |
A |
C2×B2 |
4-d1 |
D |
D1 |
n-d |
規格 |
H1 |
|
|
YG65-315(I)A |
580 |
530 |
1000 |
190×280 |
130 |
150×240 |
4-18 |
185 |
145 |
4-Φ18 |
JGD2-3 |
230 |
|
YG65-315(I)B |
580 |
530 |
1000 |
190×280 |
130 |
150×240 |
4-18 |
185 |
145 |
4-Φ18 |
JGD2-3 |
230 |
|
YG65-315(I)C |
580 |
470 |
885 |
190×280 |
130 |
150×240 |
4-18 |
185 |
145 |
4-Φ18 |
JGD2-3 |
230 |
|
YG80-100 |
400 |
285 |
570 |
140×200 |
120 |
100×160 |
4-18 |
200 |
160 |
8-Φ18 |
SD61-0.5 |
140 |
|
YG80-100A |
400 |
245 |
535 |
140×200 |
120 |
100×160 |
4-18 |
200 |
160 |
8-Φ18 |
SD61-0.5 |
140 |
|
YG80-125 |
400 |
360 |
660 |
140×200 |
120 |
100×160 |
4-18 |
200 |
160 |
8-Φ18 |
SD61-0.5 |
140 |
|
YG80-125A |
400 |
315 |
595 |
140×200 |
120 |
100×160 |
4-18 |
200 |
160 |
8-Φ18 |
SD61-0.5 |
140 |
|
YG80-160 |
400 |
360 |
660 |
140×200 |
125 |
100×160 |
4-18 |
200 |
160 |
8-Φ18 |
SD61-0.5 |
145 |
|
YG80-160A |
400 |
360 |
660 |
140×200 |
125 |
100×160 |
4-18 |
200 |
160 |
8-Φ18 |
SD61-0.5 |
145 |
|
YG80-160B |
400 |
360 |
660 |
140×200 |
120 |
100×160 |
4-18 |
200 |
160 |
8-Φ18 |
SD61-0.5 |
145 |
|
YG80-200 |
430 |
430 |
795 |
140×200 |
125 |
100×160 |
4-18 |
200 |
160 |
8-Φ18 |
JGD2-3 |
225 |
|
YG80-200A |
430 |
430 |
795 |
140×200 |
125 |
100×160 |
4-18 |
200 |
160 |
8-Φ18 |
JGD2-3 |
225 |
|
YG80-200B |
430 |
360 |
665 |
140×200 |
125 |
100×160 |
4-18 |
200 |
160 |
8-Φ18 |
JGD2-3 |
225 |
|
YG80-250 |
480 |
465 |
870 |
160×220 |
130 |
120×180 |
4-18 |
200 |
160 |
8-Φ18 |
JGD2-3 |
230 |
|
YG80-250A |
480 |
430 |
850 |
160×220 |
120 |
120×180 |
4-18 |
200 |
160 |
8-Φ18 |
JGD2-3 |
230 |
|
型號 |
外形尺寸 |
安裝尺寸 |
進口法蘭尺寸 |
隔振器(墊) |
||||||||
|
L |
B |
H |
C1×B1 |
A |
C2×B2 |
4-d1 |
D |
D1 |
n-d |
規格 |
H1 |
|
|
YG80-250B |
480 |
430 |
805 |
160×220 |
130 |
120×180 |
4-18 |
200 |
160 |
8-Φ18 |
JGD2-3 |
230 |
|
YG80-315 |
580 |
530 |
1000 |
190×280 |
130 |
150×240 |
4-18 |
200 |
160 |
8-Φ18 |
JGD2-3 |
230 |
|
YG80-315A |
580 |
530 |
1000 |
190×280 |
130 |
150×240 |
4-18 |
200 |
160 |
8-Φ18 |
JGD2-3 |
230 |
|
YG80-315B |
580 |
530 |
1000 |
190×280 |
130 |
150×240 |
4-18 |
200 |
160 |
8-Φ18 |
JGD2-3 |
230 |
|
YG80-315C |
580 |
470 |
885 |
190×280 |
130 |
150×240 |
4-18 |
200 |
160 |
8-Φ18 |
JGD2-3 |
230 |
|
YG80-100(I) |
460 |
360 |
675 |
160×220 |
140 |
150×220 |
4-18 |
200 |
160 |
8-Φ18 |
SD61-0.5 |
160 |
|
YG80-100(I)A |
460 |
360 |
615 |
160×220 |
140 |
120×180 |
4-18 |
200 |
160 |
8-Φ18 |
SD61-0.5 |
160 |
|
YG80-125(I) |
450 |
430 |
805 |
160×220 |
140 |
120×180 |
4-18 |
200 |
160 |
8-Φ18 |
JGD2-3 |
240 |
|
YG80-125(I)A |
450 |
350 |
675 |
160×220 |
140 |
120×180 |
4-18 |
200 |
160 |
8-Φ18 |
JGD2-3 |
240 |
|
YG80-160(I) |
500 |
430 |
835 |
160×220 |
160 |
120×180 |
4-18 |
200 |
160 |
8-Φ18 |
JGD2-3 |
260 |
|
YG80-160(I)A |
500 |
430 |
835 |
160×220 |
160 |
120×180 |
4-18 |
200 |
160 |
8-Φ18 |
JGD2-3 |
260 |
|
YG80-160(I)B |
500 |
430 |
835 |
160×220 |
160 |
120×180 |
4-18 |
200 |
160 |
8-Φ18 |
JGD2-3 |
260 |
|
YG80-200(I) |
480 |
475 |
880 |
160×220 |
130 |
120×180 |
4-18 |
200 |
160 |
8-Φ18 |
JGD2-3 |
235 |
|
YG80-200(I)A |
480 |
430 |
860 |
160×220 |
135 |
120×180 |
4-18 |
200 |
160 |
8-Φ18 |
JGD2-3 |
235 |
|
YG80-200(I)B |
480 |
430 |
815 |
160×220 |
135 |
120×180 |
4-18 |
200 |
160 |
8-Φ18 |
JGD2-3 |
235 |
|
型號 |
外形尺寸 |
安裝尺寸 |
進口法蘭尺寸 |
隔振器(墊) |
||||||||
|
L |
B |
H |
C1×B1 |
A |
C2×B2 |
4-d1 |
D |
D1 |
n-d |
規格 |
H1 |
|
|
YG80-250(I) |
550 |
520 |
1015 |
190×280 |
155 |
150×240 |
4-18 |
200 |
160 |
8-Φ18 |
JGD2-3 |
275 |
|
YG80-250(I)A |
550 |
520 |
1015 |
190×280 |
155 |
150×240 |
4-18 |
200 |
160 |
8-Φ18 |
JGD2-3 |
275 |
|
YG80-250(I)B |
550 |
520 |
1015 |
190×280 |
155 |
150×240 |
4-18 |
200 |
160 |
8-Φ18 |
JGD2-3 |
275 |
|
YG80-315(I) |
640 |
700 |
1235 |
190×280 |
165 |
150×240 |
4-18 |
200 |
160 |
8-Φ18 |
JGD2-3 |
285 |
|
YG80-315(I)A |
640 |
640 |
1165 |
190×280 |
165 |
150×240 |
4-18 |
200 |
160 |
8-Φ18 |
JGD2-3 |
285 |
|
YG80-315(I)B |
640 |
580 |
1080 |
190×280 |
165 |
150×240 |
4-18 |
200 |
160 |
8-Φ18 |
JGD2-3 |
285 |
|
YG80-315(I)C |
640 |
520 |
1040 |
190×280 |
165 |
150×240 |
4-18 |
200 |
160 |
8-Φ18 |
JGD2-3 |
285 |
|
YG100-100 |
460 |
360 |
675 |
160×220 |
140 |
120×180 |
4-18 |
220 |
180 |
8-Φ18 |
SD61-0.5 |
160 |
|
YG100-100A |
460 |
315 |
610 |
160×220 |
140 |
120×180 |
4-18 |
220 |
180 |
8-Φ18 |
SD61-0.5 |
160 |
|
YG100-125 |
440 |
430 |
805 |
160×220 |
140 |
120×180 |
4-18 |
220 |
180 |
8-Φ18 |
JGD2-3 |
240 |
|
YG100-125A |
440 |
350 |
675 |
160×220 |
140 |
120×180 |
4-18 |
220 |
180 |
8-Φ18 |
JGD2-3 |
240 |
|
YG100-160 |
500 |
430 |
835 |
160×220 |
160 |
120×180 |
4-18 |
220 |
180 |
8-Φ18 |
JGD2-3 |
260 |
|
YG100-160A |
500 |
430 |
835 |
160×220 |
160 |
120×180 |
4-18 |
220 |
180 |
8-Φ18 |
JGD2-3 |
260 |
|
YG100-160B |
500 |
430 |
835 |
160×220 |
160 |
120×180 |
4-18 |
220 |
180 |
8-Φ18 |
JGD2-3 |
260 |
|
YG100-200 |
480 |
475 |
880 |
160×220 |
140 |
120×180 |
4-18 |
220 |
180 |
8-Φ18 |
JGD2-3 |
240 |
|
型號 |
外形尺寸 |
安裝尺寸 |
進口法蘭尺寸 |
隔振器(墊) |
||||||||
|
L |
B |
H |
C1×B1 |
A |
C2×B2 |
4-d1 |
D |
D1 |
n-d |
規格 |
H1 |
|
|
YG100-200A |
480 |
430 |
860 |
160×220 |
140 |
120×180 |
4-18 |
220 |
180 |
8-Φ18 |
JGD2-3 |
240 |
|
YG100-200B |
480 |
430 |
815 |
160×220 |
140 |
120×180 |
4-18 |
220 |
180 |
8-Φ18 |
JGD2-3 |
240 |
|
YG100-250 |
550 |
520 |
1015 |
160×220 |
155 |
120×180 |
4-18 |
220 |
180 |
8-Φ18 |
JGD2-3 |
275 |
|
YG100-250A |
550 |
520 |
1015 |
160×220 |
155 |
120×180 |
4-18 |
220 |
180 |
8-Φ18 |
JGD2-3 |
275 |
|
YG100-250B |
550 |
520 |
1015 |
160×220 |
155 |
120×180 |
4-18 |
220 |
180 |
8-Φ18 |
JGD2-3 |
275 |
|
YG100-315 |
640 |
700 |
1235 |
250×300 |
165 |
160×220 |
4-18 |
220 |
180 |
8-Φ18 |
JGD2-3 |
285 |
|
YG100-315A |
640 |
640 |
1165 |
250×300 |
165 |
160×220 |
4-18 |
220 |
180 |
8-Φ18 |
JGD2-3 |
285 |
|
YG100-315B |
640 |
580 |
1080 |
250×300 |
165 |
160×220 |
4-18 |
220 |
180 |
8-Φ18 |
JGD2-3 |
285 |
|
YG100-315C |
640 |
520 |
1045 |
250×300 |
165 |
160×220 |
4-18 |
220 |
180 |
8-Φ18 |
JGD2-3 |
285 |
|
YG100-100(I) |
500 |
415 |
802 |
160×220 |
140 |
120×280 |
4-18 |
220 |
180 |
8-Φ18 |
JGD2-3 |
180 |
|
YG100-125(I) |
500 |
300 |
807 |
160×220 |
160 |
120×280 |
4-18 |
220 |
180 |
8-Φ18 |
JGD2-3 |
180 |
|
YG100-125(I)A |
500 |
280 |
807 |
160×220 |
160 |
120×280 |
4-18 |
220 |
180 |
8-Φ18 |
JGD2-3 |
180 |
|
YG100-160(I) |
500 |
330 |
884 |
160×220 |
170 |
120×280 |
4-18 |
220 |
180 |
8-Φ18 |
JGD2-3 |
190 |
|
YG100-160(I)A |
500 |
330 |
884 |
160×220 |
170 |
120×280 |
4-18 |
220 |
180 |
8-Φ18 |
JGD2-3 |
190 |
|
YG100-200(I) |
540 |
365 |
970 |
160×220 |
165 |
120×180 |
4-18 |
220 |
180 |
8-Φ18 |
JGD2-3 |
185 |
|
型號 |
外形尺寸 |
安裝尺寸 |
進口法蘭尺寸 |
隔振器(墊) |
||||||||
|
L |
B |
H |
C1×B1 |
A |
C2×B2 |
4-d1 |
D |
D1 |
n-d |
規格 |
H1 |
|
|
YG100-200(I)A |
540 |
345 |
970 |
160×220 |
165 |
120×180 |
4-18 |
220 |
180 |
8-Φ18 |
JGD2-3 |
185 |
|
YG100-200(I)B |
540 |
345 |
970 |
160×220 |
165 |
120×180 |
4-18 |
220 |
180 |
8-Φ18 |
JGD2-3 |
185 |
|
YG100-250(I) |
600 |
435 |
1121 |
190×280 |
175 |
150×240 |
4-18 |
220 |
180 |
8-Φ18 |
JGD2-3 |
275 |
|
YG100-250(I)A |
600 |
360 |
1121 |
190×280 |
175 |
150×240 |
4-18 |
220 |
180 |
8-Φ18 |
JGD2-3 |
275 |
|
YG100-250(I)B |
600 |
360 |
1121 |
190×280 |
175 |
150×240 |
4-18 |
220 |
180 |
8-Φ18 |
JGD2-3 |
275 |
|
YG125-100 |
520 |
430 |
830 |
190×280 |
165 |
150×240 |
4-18 |
250 |
210 |
8-Φ18 |
JGD2-3 |
265 |
|
YG125-100A |
520 |
360 |
830 |
190×280 |
165 |
150×240 |
4-18 |
250 |
210 |
8-Φ18 |
JGD2-3 |
265 |
|
YG125-125 |
520 |
430 |
840 |
190×280 |
170 |
150×240 |
4-18 |
250 |
210 |
8-Φ18 |
JGD2-3 |
270 |
|
YG125-125A |
520 |
430 |
840 |
190×280 |
170 |
150×240 |
4-18 |
250 |
210 |
8-Φ18 |
JGD2-3 |
270 |
|
YG125-160 |
520 |
460 |
920 |
190×280 |
175 |
150×240 |
4-18 |
250 |
210 |
8-Φ18 |
JGD2-3 |
275 |
|
YG125-160A |
520 |
430 |
890 |
190×280 |
175 |
150×240 |
4-18 |
250 |
210 |
8-Φ18 |
JGD2-3 |
275 |
|
YG125-160B |
520 |
430 |
850 |
190×280 |
175 |
150×240 |
4-18 |
250 |
210 |
8-Φ18 |
JGD2-3 |
275 |
|
YG125-200 |
570 |
510 |
1040 |
250×300 |
175 |
210×260 |
4-18 |
250 |
210 |
8-Φ18 |
JGD3-2 |
295 |
|
YG125-200A |
570 |
510 |
1040 |
250×300 |
175 |
210×260 |
4-18 |
250 |
210 |
8-Φ18 |
JGD3-2 |
295 |
|
YG125-200B |
570 |
460 |
1040 |
250×300 |
175 |
210×260 |
4-18 |
250 |
210 |
8-Φ18 |
JGD3-2 |
295 |
|
型號 |
外形尺寸 |
安裝尺寸 |
進口法蘭尺寸 |
隔振器(墊) |
||||||||
|
L |
B |
H |
C1×B1 |
A |
C2×B2 |
4-d1 |
D |
D1 |
n-d |
規格 |
H1 |
|
|
YG125-250 |
680 |
660 |
1180 |
250×300 |
170 |
210×260 |
4-18 |
250 |
210 |
8-Φ18 |
JGD3-2 |
290 |
|
YG125-250A |
680 |
570 |
1080 |
250×300 |
170 |
210×260 |
4-18 |
250 |
210 |
8-Φ18 |
JGD3-2 |
290 |
|
YG125-250B |
680 |
510 |
1050 |
250×300 |
170 |
210×260 |
4-18 |
250 |
210 |
8-Φ18 |
JGD3-2 |
290 |
|
YG125-315 |
680 |
685 |
1350 |
300×350 |
180 |
230×280 |
4-18 |
250 |
210 |
8-Φ18 |
JGD3-2 |
300 |
|
YG125-315A |
680 |
685 |
1300 |
300×350 |
180 |
230×280 |
4-18 |
250 |
210 |
8-Φ18 |
JGD3-3 |
300 |
|
YG125-315B |
680 |
685 |
1350 |
300×350 |
180 |
230×280 |
4-18 |
250 |
210 |
8-Φ18 |
JGD3-3 |
300 |
|
YG125-315C |
680 |
660 |
1230 |
300×350 |
180 |
230×280 |
4-18 |
250 |
210 |
8-Φ18 |
JGD3-3 |
300 |
|
YG150-125 |
520 |
430 |
840 |
160×220 |
170 |
120×180 |
4-18 |
285 |
240 |
8-Φ22 |
JGD2-3 |
275 |
|
YG150-125A |
520 |
430 |
840 |
160×220 |
170 |
120×180 |
4-18 |
285 |
240 |
8-Φ22 |
JGD2-3 |
275 |
|
YG150-160 |
520 |
430 |
850 |
190×280 |
175 |
150×240 |
4-18 |
285 |
240 |
8-Φ22 |
JGD2-3 |
275 |
|
YG150-160A |
520 |
430 |
850 |
190×280 |
175 |
150×240 |
4-18 |
285 |
240 |
8-Φ22 |
JGD2-3 |
275 |
|
YG150-160B |
520 |
430 |
850 |
190×280 |
175 |
150×240 |
4-18 |
285 |
240 |
8-Φ22 |
JGD2-3 |
275 |
|
YG150-200 |
680 |
435 |
930 |
250×300 |
200 |
210×260 |
4-18 |
285 |
240 |
8-Φ22 |
JGD2-3 |
300 |
|
YG150-200A |
680 |
435 |
885 |
250×300 |
200 |
210×260 |
4-18 |
285 |
240 |
8-Φ22 |
JGD2-3 |
300 |
|
YG150-200B |
680 |
435 |
885 |
250×300 |
200 |
210×260 |
4-18 |
285 |
240 |
8-Φ22 |
JGD2-3 |
300 |
|
型號 |
外形尺寸 |
安裝尺寸 |
進口法蘭尺寸 |
隔振器(墊) |
||||||||
|
L |
B |
H |
C1×B1 |
A |
C2×B2 |
4-d1 |
D |
D1 |
n-d |
規格 |
H1 |
|
|
YG150-250 |
700 |
475 |
960 |
250×300 |
205 |
210×260 |
4-18 |
285 |
240 |
8-Φ22 |
JGD2-3 |
305 |
|
YG150-250A |
700 |
475 |
940 |
250×300 |
205 |
210×260 |
4-18 |
285 |
240 |
8-Φ22 |
JGD2-3 |
305 |
|
YG150-250B |
700 |
445 |
895 |
250×300 |
205 |
210×260 |
4-18 |
285 |
240 |
8-Φ22 |
JGD2-3 |
305 |
|
YG150-315 |
760 |
530 |
1075 |
250×300 |
205 |
210×260 |
4-18 |
285 |
240 |
8-Φ22 |
JGD3-3 |
325 |
|
YG150-315A |
760 |
505 |
1000 |
250×300 |
205 |
210×260 |
4-18 |
285 |
240 |
8-Φ22 |
JGD3-3 |
325 |
|
YG150-315B |
760 |
505 |
960 |
250×300 |
205 |
210×260 |
4-18 |
285 |
240 |
8-Φ22 |
JGD3-3 |
325 |
|
YG150-400 |
800 |
595 |
1120 |
250×300 |
210 |
210×260 |
4-18 |
285 |
240 |
8-Φ22 |
JGD2 |
330 |
|
YG150-400A |
800 |
595 |
1095 |
250×300 |
210 |
210×260 |
4-18 |
285 |
240 |
8-Φ22 |
JGD3 |
330 |
|
YG150-400B |
800 |
560 |
1075 |
250×300 |
210 |
210×260 |
4-18 |
285 |
240 |
8-Φ22 |
JGD3 |
330 |
|
YG150-400C |
800 |
535 |
1000 |
250×300 |
210 |
210×260 |
4-18 |
285 |
240 |
8-Φ22 |
JGD3-3 |
330 |
|
YG150-250(I) |
700 |
700 |
1280 |
250×300 |
195 |
210×260 |
4-18 |
285 |
240 |
8-Φ22 |
JGD3-3 |
315 |
|
YG150-250(I)A |
700 |
640 |
1200 |
250×300 |
195 |
210×260 |
4-18 |
285 |
240 |
8-Φ22 |
JGD3-3 |
315 |
|
YG150-250(I)B |
700 |
585 |
1115 |
250×300 |
195 |
210×260 |
4-18 |
285 |
240 |
8-Φ22 |
JGD3-3 |
315 |
|
YG200-200 |
680 |
435 |
930 |
300×370 |
200 |
250×320 |
4-22 |
340 |
295 |
12-Φ22 |
JGD2-3 |
300 |
|
YG200-200A |
680 |
435 |
885 |
300×370 |
200 |
250×320 |
|
340 |
295 |
12-Φ22 |
JGD2-3 |
300 |
|
型號 |
外形尺寸 |
安裝尺寸 |
進口法蘭尺寸 |
隔振器(墊) |
||||||||
|
L |
B |
H |
C1×B1 |
A |
C2×B2 |
4-d1 |
D |
D1 |
n-d |
規格 |
H1 |
|
|
YG200-250 |
750 |
475 |
960 |
300×370 |
210 |
250×320 |
4-22 |
340 |
295 |
12-Φ22 |
JGD2-3 |
310 |
|
YG200-250A |
750 |
475 |
940 |
300×370 |
210 |
250×320 |
4-22 |
340 |
295 |
12-Φ22 |
JGD2-3 |
310 |
|
YG200-250B |
750 |
445 |
895 |
300×370 |
210 |
250×320 |
4-22 |
340 |
295 |
12-Φ22 |
JGD2-3 |
310 |
|
YG200-315 |
800 |
530 |
1075 |
270×320 |
210 |
210×260 |
4-22 |
340 |
295 |
12-Φ22 |
JGD3-3 |
330 |
|
YG200-315A |
800 |
505 |
1000 |
270×320 |
210 |
210×260 |
4-22 |
340 |
295 |
12-Φ22 |
JGD3-3 |
330 |
|
YG200-315B |
800 |
505 |
960 |
270×320 |
210 |
210×260 |
4-22 |
340 |
295 |
12-Φ22 |
JGD3-3 |
330 |
|
YG200-400 |
860 |
595 |
1120 |
300×370 |
225 |
250×320 |
4-22 |
340 |
295 |
12-Φ22 |
JGD3-3 |
345 |
|
YG200-400A |
860 |
595 |
1095 |
300×370 |
225 |
250×320 |
4-22 |
340 |
295 |
12-Φ22 |
JGD3-3 |
345 |
|
YG200-400B |
860 |
560 |
1075 |
300×370 |
225 |
250×320 |
4-22 |
340 |
295 |
12-Φ22 |
JGD3-3 |
345 |
|
YG200-400C |
860 |
535 |
1000 |
300×370 |
225 |
250×320 |
4-22 |
340 |
295 |
12-Φ22 |
JGD3-3 |
345 |
|
YG200-200(I) |
810 |
525 |
1030 |
300×370 |
240 |
250×320 |
4-22 |
340 |
295 |
12-Φ22 |
JGD3-2 |
360 |
|
YG200-200(I)A |
810 |
525 |
970 |
300×370 |
240 |
250×320 |
4-22 |
340 |
295 |
12-Φ22 |
JGD3-2 |
360 |
|
YG200-250(I) |
830 |
530 |
1110 |
300×370 |
240 |
250×320 |
4-22 |
340 |
295 |
12-Φ22 |
JGD3-3 |
360 |
|
YG200-250(I)A |
830 |
510 |
1035 |
300×370 |
240 |
250×320 |
4-22 |
340 |
295 |
12-Φ22 |
JGD3-3 |
360 |
|
YG200-250(I)B |
830 |
510 |
995 |
300×370 |
240 |
250×320 |
4-22 |
340 |
295 |
12-Φ22 |
JGD3-3 |
36 |
|
型號 |
外形尺寸 |
安裝尺寸 |
進口法蘭尺寸 |
隔振器(墊) |
||||||||
|
L |
B |
H |
C1×B1 |
A |
C2×B2 |
4-d1 |
D |
D1 |
n-d |
規格 |
H1 |
|
|
YG200-315(I) |
860 |
645 |
1265 |
300×370 |
250 |
250×320 |
4-22 |
340 |
295 |
12-Φ22 |
JGD4-1 |
380 |
|
YG200-315(I)A |
860 |
625 |
1180 |
300×370 |
250 |
250×320 |
4-22 |
340 |
295 |
12-Φ22 |
JGD4-1 |
380 |
|
YG200-315(I)B |
860 |
625 |
1145 |
300×370 |
250 |
250×320 |
4-22 |
340 |
295 |
12-Φ22 |
JGD4-1 |
380 |
|
YG200-400(I) |
880 |
700 |
1340 |
300×370 |
260 |
250×320 |
4-22 |
340 |
295 |
12-Φ22 |
JGD4-2 |
390 |
|
YG200-400(I)A |
880 |
700 |
1340 |
300×370 |
260 |
250×320 |
4-22 |
340 |
295 |
12-Φ22 |
JGD4-2 |
390 |
|
YG200-400(I)B |
880 |
635 |
1270 |
300×370 |
260 |
250×320 |
4-22 |
340 |
295 |
12-Φ22 |
JGD4-2 |
390 |
|
YG200-400(I)C |
880 |
600 |
1185 |
300×370 |
260 |
250×320 |
4-22 |
340 |
295 |
12-Φ22 |
JGD4-2 |
390 |
|
YG250-250 |
1110 |
550 |
1145 |
350×400 |
250 |
280×330 |
4-22 |
405 |
355 |
12-Φ26 |
JGD4-2 |
390 |
|
YG250-250A |
1110 |
550 |
1145 |
350×400 |
250 |
280×330 |
4-22 |
405 |
355 |
12-Φ26 |
JGD4-2 |
390 |
|
YG250-315 |
1110 |
640 |
1350 |
350×400 |
265 |
300×340 |
4-22 |
405 |
355 |
12-Φ26 |
JGD4-2 |
390 |
|
YG250-315A |
1110 |
640 |
1350 |
350×400 |
265 |
300×340 |
4-22 |
405 |
355 |
12-Φ26 |
JGD4-2 |
390 |
|
YG250-315B |
1110 |
640 |
1350 |
350×400 |
265 |
280×330 |
4-22 |
405 |
355 |
12-Φ26 |
JGD4-2 |
390 |
|
YG250-400 |
1200 |
900 |
1740 |
400×500 |
265 |
330×430 |
4-22 |
405 |
355 |
12-Φ26 |
JGD4-2 |
390 |
|
YG350-315 |
1300 |
680 |
1400 |
500×450 |
360 |
430×380 |
4-22 |
520 |
470 |
16-Φ26 |
JGD4-2 |
568 |
管道連接方式:
|
橫式抽送水用 |
單段橫式配裝 |
多段豎式配裝 |
|
|
|
|
|
多段橫式配裝 |
豎式抽送水用 |
單段豎式配裝 |
|
|
|
|
安裝方式:
一、硬性連接:
|
1.直接安裝 |
2.聯接板安裝 |
|
|
|
|
1.進口閥門 2.直管 3.彎管 4.直管 5.直管 6.彎管 7.直管 8.出口閥門 |
1.進口閥門 2.直管 3.彎管 4.直管 5.聯接板 6.直管 7.彎管8.直管9.出口閥門 |
二、柔性連接:
|
1.聯接板,加隔振器安裝 |
2.聯接板,加隔振墊安裝 |
|
|
|
|
1.進口閥門 2.柔性接頭 3.彎管 4.直管 5.聯接板 6.隔振器 7.直管 8.彎管 9.柔性接頭 10.出口閥門 |
1.進口閥門 2.柔性接頭3.直管4.聯接板 5.隔振墊 6.直管 7.出口閥門 |
YGB型不銹鋼防爆立式管道油泵的維護:
(一)運行中的維護
1、進口管道必須充滿液體,禁止泵在汽蝕狀態下長期運行。
2、定時檢查電機電流值,不得超過電機額定電流。
3、泵進行長期運行后,由于機械磨損,使機組噪音及振動增大時,應停車檢查,必要時可更換易損件,機組大修期一般為一年。
(二)機械密封維護
1、機械密封潤滑應清潔無固體顆粒。
2、嚴禁機械密封在干磨情況下工作。
3、起動前應先盤動泵(電機)幾圈,以免突然起動造成石墨環斷裂損壞。
4、密封泄漏允差3滴/分,否則應檢修。
故障原因及排除方法:
|
故障現象 |
可能產生的原因 |
排除方法 |
|
1、水泵不出水 |
a.進出口閥門未打開,進出管路阻塞,葉輪流道阻塞。 b.電機運行方向不對,電機缺相轉速很慢。 c.吸入管漏氣。 d.泵沒灌滿液體,泵腔內有空氣。 e.進口供水不足,吸程過高,底閥漏水。 f.管路阻力過大,泵選型不當。 |
a.檢查,去除阻塞物。 b.調整電機方向,緊固電機接線。 c.擰緊各密封面,排除空氣。 d.打開泵上蓋或打開排氣閥,排盡空氣。 e.停機檢查、調整。 f.減少管路彎道,重新選泵。 |
|
2、水泵流量不足 |
a.先按1.原因檢查。 b.管道、泵葉輪流道部分阻塞,水垢沉積、閥門開度不足。 c.電壓偏低。 d.葉輪磨損。 |
a.先按1.排除。 b.去除阻塞物,重新調整閥門開度。 c.穩壓。 d.更換葉輪。 |
|
3、功率過大 |
a.超過額定流量使用。 b.吸程過高。 c.泵軸承磨損。 |
a.調節流量,關小出口閥門。 b.降低吸程。 c.更換軸承。 |
|
4、雜音振動 |
a.管路支撐不穩。 b.液體混有氣體。 c.產生汽蝕。 d.軸承損壞。 e.電機超載發熱動行。 |
a.穩固管路。 b.提高吸入壓力、排氣。 c.降低真空度。 d.更換軸承。 e.調整按5。 |
|
5、電機發熱 |
a.流量過大,超載運行。 b.碰擦。 c.電機軸承損壞。 d.電壓不足。 |
a.關小出口閥。 b.檢查排除。 c.更換軸承。 d.穩壓。 |
|
6、水泵漏水 |
a.機械密封磨損。 b.泵體有砂孔或破裂。 c.密封面不平整。 d.安裝螺栓松懈。 |
a.更換。 b.焊補或更換。 c.修整。 d.緊固。 |
啟動與停車:
(一)起動前準備
1、用手撥轉電機風葉,葉輪應無卡磨現象,轉動靈活。
2、打開進口閥門打開排氣閥使液體充滿整個泵腔,然后關閉排氣閥。
3、用手盤動泵以使潤滑液進入機械密封端面。
4、點動電機,確定轉向是否正確。
(二)起動與運行
1、全開進口閥門,關閉吐出管路閥門。
2、接通電源,當泵達到正常轉速后,再逐漸打開吐出管路上閥門,并調節到所需工況。
3、注意觀察儀表讀數,檢查軸封泄漏情況,正常時機械密封泄漏量<3滴/分,檢查電機、軸承處溫升≤70℃,如果發現異常情況,應及時處理。
(三)停車
l、逐漸關閉吐出管路閥門,切斷電源。
2、關閉進口閥門。
3、如環境溫度低于0℃,應將泵內液體放盡,以免凍裂。
4、如長期停用,應將泵拆卸清洗,包裝保管。
安裝說明:
1、安裝前應檢查機組緊固體有無松動現象,泵體流道有無異物堵塞,以免水泵運行時損壞葉輪和泵體。
2、安裝時管道重量不應加在水泵上,以免使泵變形。
3、安裝時必須擰緊地腳螺栓,以免起動時振動對泵性能的影響。
4、為了維修方便和使用安全,在泵的進出口管路上各安裝一只調節閥及在泵出口附近安裝一只壓力表,以保證在額定揚程和流量范圍內運行,確保泵正常運行,延長水泵的使用壽命。
5、安裝后撥動泵軸,葉輪應無磨擦聲或卡死現象,否則應將泵拆開檢查原因。
6、泵分硬性聯接安裝和柔性聯接安裝兩種(見聯接方式)。
產品特點:
1.泵為立式結構,進出口口徑相同,且位于同一中心線上,可象閥門一樣安裝于管路之中,外形緊湊美觀,占地面積小,建筑投入低,如加上防護罩則可置于戶外使用.
2.葉輪直接安在電機的加長軸上,軸向尺寸短,結構緊湊,泵與電機軸承配置合理,能有效地平衡泵運轉產生的徑向和軸向負荷,從而保證了泵的運行平穩,振動噪音很低.
3.軸封采用機械密封或機械密封組合,采用進口鈦合金密封環、中型耐高溫機械密封和采用硬質合金材質,耐磨密封,能有效地增長機械密封的使用壽命。
4.安裝檢修方便,無需拆動管路系統,只要卸下泵聯體座螺母即可抽出全部轉子部件。
5.可根據使用要求即流量和揚程的需要采用泵的串、并聯運行方式.
6.可根據管路布置的要求采用泵的豎式和橫式安裝。
產品用途:
1.YG型立式管道油泵,供輸送汽油、煤油、柴油等石油產品,被輸送介質溫度為-20℃-+120℃。
2.該泵主要使用在管路增壓,遠距離輸送汽油、煤油、柴油、航空油等油類,也可輸送其它無腐蝕性的液體。 適用于油庫、油站、化工、礦山、石化、企事業單位等。










